This proposal for the Helsinki Design Museum combines the existing programs in the space (a market and a post office) with the new Museum to create a single, cohesive building that brings together people from all over Helsinki. The main space in the building has been named the Mixing Chamber. It serves as a circulation point that creates connections between people travelling from the street to the plaza as well as between the different spaces in the building. The museum’s gallery spaces are located on the second and third floors of the building on both the North and South, with the mixing chamber rising up through the middle. The gallery spaces are separated by ramps that spiral up around the building’s central core, creating moments in between galleries to view out at the city, or in at the mixing chamber. The gallery spaces challenge the traditional “white box” design through their use of timber construction and natural lighting. This museum is meant to be a space for people to come together and enjoy the uniquely Finish design.
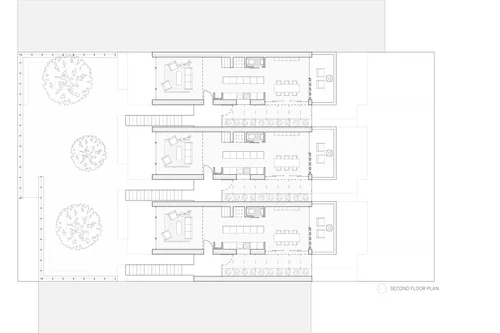
Designed with Rachel Lu and Brandon Smith, this project sought to create a series of three two unit row houses in Pittsburgh’s Uptown neighborhood. Located on a street that experiences heavy car and bus traffic, one of the initial design moves that we made was to set the massing back from this street. This created a buffer zone where a courtyard could be located. A green wall screen was also added on the edge of the plot to maintain some greenery on the site, while adding another semi-transparent layer between the street and the houses.
The row houses use CMU block wall construction. Six heavy block walls clad with brick veneer create a unique juxtaposition of heavy and light with the open floor plans and the green houses located between each row house.
The studio placed an emphasis on understanding the construction of the building, so we created a series of detailed sections as well. To see the full construction drawing set, please go to this link:
https://issuu.com/jacobmosk98/docs/uptown_row_cd_set
This project was for a design build studio, where, in collaboration with Alyssa Mayorga and Yashwitha Reddy, we were tasked with the design of a porch that extended off the side of an existing building in Wilkinsburg, a just East of Pittsburgh. The porch is being commissioned by Community Forge, an after school program that owns the building. The porch is designed to be a playful, colorful, and dynamic piece of architecture that invites the members of Community Forge and whoever else uses the playground to hang out and play.
The porch is designed with red perforated wood panels that create a sense of transparency that yields beautiful shadows and allows natural light to pass through to the rooms behind the porch.
We also built a full scale prototype of a chunk of the porch in order to completely understand how this porch would be built in the future.
To view the Construction Documents, use the link:
https://issuu.com/jacobmosk98/docs/redribbonporch_constrcutiondrawings_12_12
These are a collection of drawings and paintings I did for a course in the Fall of 2019 taught by Doug Cooper. The first half of the semester, we used pastels as our medium. For the second half, we used water color paints. Having almost no experience with water colors, there was a bit of a learning curve, but I’ve included all of my works in chronological order to show my improvements.
The Environmental Charter School (ECS) is a middle school in the Regent Square neighborhood of Pittsburgh that focuses on creating a learning experience based around real world tasks and tools through a carefully thought out curriculum. ECS is an innovative, progressive school dedicated to preparing their students for the future. Currently, ECS is located in an outdated building that is cramped and dark, which aren’t ideal learning conditions. Our studio has been tasked with designing a new school building for ECS at a new site. The new site is on Liberty Avenue at the edge of West Bloomfield. It is just west of the intersection at Liberty Avenue and the Bloomfield Bridge.
ECS stresses the importance of community interaction, so it is important to keep the school open and welcoming to members of the community, while keeping the students safe as well. The “Environmental” in Environmental Charter School is not just about teaching through nature and sustainability. It is about the built environment, the surrounding community, and how students can learn from their surroundings. ECS’s main priority is their students. It was apparent from the site visit that every dollar they could spend was going towards the students. Therefore, the design of this school should be first and foremost for the students. The school requires four classrooms per grade, 12 total. An individual classroom will also be the homeroom for a group of 20-24 students for their entire three years at the school. The idea behind this is to make a classroom feel like a home within a neighborhood cluster of 4 classrooms per grade. If the analogy continues, each grade comprises a neighborhood, and together, grades 6 through 8 make up a community. The overall feel of the school should be that of one unified community, where each person can learn from every one else through daily interactions within the school. In addition to the required spaces, my design for the Environmental Charter School places an emphasis on the idea that a school can function in a similar fashion to a marketplace. The collaboration, presentations, and interactions that occur in a marketplace can translate into unique and exciting learning spaces within a school. The marketplace of ECS occurs in the extra areas that are created by the required programmatic spaces. These spaces should be used to connect the students with one another as well as with their community in order to help them learn to the best of their abilities.
Housing on Six Mile Island, located on the Allegheny River, between Pittsburgh and Sharpsburg. The design was finalized through a process of design, analysis, and redesign, until the final form was maximized for rain water collection and optimal lighting conditions.
The goal of the six mile island eco-housing is to create a cohesive, connected space that blurs the line between architecture and the island in an ecological, morphological, and domestic sense. The effect that the architecture should have on the residence is creating an understanding of the subtle distinction between the island and the artificiality of the architecture. The architecture delicately peels up from the ground in a seamless transition between ground and form. The architecture is also the start of the ecomachine on the island. The housing units range in size to create single to double sized units that sit at the top of the island. Shading devices cantilever out past the highest points on the island in a way that blocks summer sun, and redirects rain water. Some of the rain water that would normally flow off the other side of the island would now be caught on the cantilevers and flow down the gentle slope of the architecture into bioswales on the island that filter the water as well as direct it to a marsh at the base of the island. Gutters that double as windows project off the roof, giving the water a sense of direction as it flows into the bioswales. The bioswales start at the base of the housing units, and expand to collect as much water as possible. The marsh is created by terraforming the island so that it connects to Sharpsburgh, with narrow pathways for the river water to slowly flow through. The decrease of the amount and speed of water allows for a marsh to form. Rain water and river water will flow through the marsh, where any sewage or other water pollutants will be filtered out, leading to cleaner river water. The ecomachine will create an experiential system that helps inform inhabitants of the qualities of water and how it can be processed naturally. The roofs will also collect rainwater for the inhabitants. Little slits in the roof will filter water into a large container that will store water in the home. As soon as it is full, water will continue flowing into the bioswales, giving the inhabitants a sense for how much water they have stored. The housing is set up to create a strong sense of privacy for each inhabitant. The units are separate and partially underground. There are small pockets on the sides of the units for doors and windows. To continue the theme of being one with the land, the programmatic sequence is designed to create a series of views out from the house focused on the surrounding nature.
A mixed use office building, located in the up and coming neighborhood of East Liberty in Pittsburgh. Special emphasis was placed on creating a space that brought members of the community together.
East Liberty is going through an interesting time in its history, as it still was home to many stores and restaurants that have been there for decades, but is also seeing an up-tick in coffee shops, trendy clothing stores, and high end apartments. The neighborhood is in a transitional period that may be leading to eventual gentrification. This was something important that I wanted to address. My office only reached the schematic design phase, but my general ideas for the involvement of the community in this new building were still evident. The staff of the office space were presumably a younger crowd that would be paid well to work at up and coming tech companies in the office building. This community of workers would likely move into some of the higher end apartments in the neighborhood, contributing to the gentrification of East Liberty. I created an open entry onto the main street, inviting the community into the public atrium space on the first floor. The program called for a more progressive office space that didn’t have a set plan or layout, allowing the workers to work on their laptops from anywhere they wanted. The goal of the public atrium space was to bring the office workers and the rest of the community together. If the existing community can form a relationship with the likely wealthier staff who work in the office, a dialogue can occur where the two groups start to understand each other’s needs better. This alone wouldn’t stop gentrification, but as the architect, I did my part in providing the spaces for a dialogue to occur. The program also called for an assembly space that could be used by the public as well as the staff members of the office. I decided to place the assembly space on the third floor, separated from the third floor office, but with a view into their space. The idea behind this was to give the community a connection to the office workers through a better understanding of how they work. A lot of times, the opposing sides of the fight for and against gentrification in a community do not a have great relationship with each other. The office building I designed was intended to create spaces that foster and nurture healthy relationships in the community that may not have occurred otherwise.
A bath house located in the New Hampshire forest based on Finnish bathing ideals for comfort, progressing the user through warm, then hot, then cold pools, ending in a relaxation space.
An urban agriculture center in Homewood, a neighborhood in Pittsburgh, designed with the intention of teaching the youth about the growing cycle of plants through the growing of various plant types on the site.
The urban agriculture center is situated in a neighborhood in Pittsburgh called Homewood. There aren’t any grocery stores within a 15 minute bus ride, so an urban agriculture center in the area would provide a decent amount of healthy food to the community as well as teach the community how to grow healthy foods in their own homes.
The program is based off of a plant’s life cycle, with a few additions. Plants grow in the greenhouse, are harvested and prepared in the kitchen, are sold in the market, eaten in the cafeteria, and the the remaining food is composted in the outdoor garden. The compost is then brought back into the greenhouse, restarting the cycle. The intention behind creating a cyclical plan is to create an architecture that acts as a second teacher to the community as the employees actively teach the people how to grow in order to do so in their own homes in the future.
A creative solution to the issue of keeping plants alive throughout the entire winter season. The group as a whole was interested in the idea of “nesting” different spaces within other spaces to create a feeling of spatial overlaps within the hoop house. The purpose of this is to add different layers of varying heat within the hoop house. These nested spaces would be accessable through the movement of the outer pieces. The interactive aspect of the project would add an educational component to the overall design in that it allows the user to figure out how the different pieces relate to one another
Designed and built in collaboration with Gisselt Gomez, Sean McGadden, Louis Suarez, Kevin Thies, and Alex Wang.
This parasite inserted into Carnegie Mellon’s Hunt Library creates a study space that splits into personal and group study when the pixelated additions extend outside of the library’s original facade. The extension on the outside is more personal, and the inside is more group study. In addition to pixelating the space horizontally, I designed different vertical components that could be combined in different ways to form steps, seats, chairs, desks, places to lean, and more. These vertical components are used mostly on the group study space, ideally promoting free flowing movement thorughout that area as people converse.
A collection of hand drafted drawings, exploring various ways to represent the subject at hand. All drawings were done during my first year at Carnegie Mellon University.